Aller à :

  • Aller à la recherche
  • Aller au menu principal
  • Aller au contenu
0
  • ACHETER
  • LOUER
  • BIENS VENDUS
  • VENDRE / ESTIMER
  • ALERTE E-MAIL
  • AVIS CLIENTS
  • Contact
0
  • Acheter De l'ancien
Créez votre alerte e-mail
Dans un rayon de
Budget
Mini €
Maxi €

    Faites estimer votre bien par un professionnel

    Estimer votre bien
    1. Accueil
    2. Vente
    3. Guerande
    4. Appartement
    5. T3
    6. Appartement a vendre guerande 64m
    Sous-offre
    Nouveauté
    Réf : 108
    Appartement
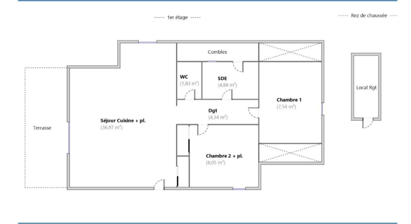
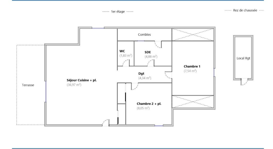
    Appartement à vendre, Guérande 64m²
    Nombre de pièces 3
    Nombre de chambres 2
    Salle d'eau 1
    184 000 €

    Appartement à vendre, Guérande 64m² Guérande (44350)

    Guérande (La Madeleine bourg), commerces et commodités à pied pour cet appartement coup de coeur (64m² habitables et 93m² au sol) situé au premier étage d'une petite copropriété.

    Vous profiterez d'une belle pièce de vie lumineuse avec sa cuisine ouverte, une terrasse de 16m², un dégagement desservant une salle d'eau, deux chambres et un wc indépendant. Nombreux placards et rangements.

    Cet appartement fonctionnel dispose d'une cave (eau et électricité) et deux places de stationnements privatives. Il vous offrira un confort complet pour le quotidien, et le charme unique avec ses poutres apparentes.

    Une belle opportunité pour y résider ou réaliser un investissement locatif. Faibles charges. A voir rapidement !

    Plus d'informations : www.droulonimmobilier.com


    Les informations sur les risques auxquels ce bien est exposé sont disponibles sur le site Géorisques
    • Général
    • Détails +
    • Copropriété
    • Financier
    • DPE
    • Quartier
    Caractérisque Valeurs
    Code postal 44350
    Surface habitable (m²) 64 m²
    Surface loi Carrez (m²) 64 m²
    Nombre de chambre(s) 2
    Nombre de pièces 3
    Etage 1
    Nombre de niveaux 1
    Ascenseur NON
    Caractérisque Valeurs
    Nb de salle d'eau 1
    Mode de chauffage Electrique
    Type de chauffage Panneaux rayonnant
    Format de chauffage Individuel
    Balcon OUI
    Terrasse OUI
    Cave OUI
    Nombre de parking 2
    Exposition Sud-Est
    Année de construction 1996
    Caractérisque Valeurs
    Copropriété OUI
    nombre de lots 7
    Quote Part annuelle des charges 372 €
    plan de sauvegarde NON
    statut du syndic pas de procédure en cours
    Caractérisque Valeurs
    Prix de vente honoraires TTC inclus 184 000 €
    Prix de vente honoraires TTC exclus 175 500 €
    Honoraires TTC à la charge acquéreur 4,84 %
    Taxe foncière annuelle 1 500 €
    DPE GES
    • Commerces et santé
    • Loisirs
    • Ecoles
    • Transports
    • Pratique
    cette offre vous intéresse ?
    Contacter l'agence
    06 21 91 10 38

    * champs obligatoires

    Les informations recueillies sur ce formulaire sont enregistrées dans un fichier informatisé par La Boite Immo agissant comme Sous-traitant du traitement pour la gestion de la clientèle/prospects de l'Agence / du Réseau qui reste Responsable du Traitement de vos Données personnelles. La base légale du traitement repose sur l'intérêt légitime de l'Agence / du Réseau. Elles sont conservées jusqu'à demande de suppression et sont destinées à l'Agence / au Réseau. Conformément à la loi « informatique et libertés », vous disposez des droits d’accès, de rectification, d’effacement, d’opposition, de limitation et de portabilité de vos données. Vous pouvez retirer votre consentement à tout moment en contactant directement l’Agence / Le Réseau. Consultez le site https://cnil.fr/fr pour plus d’informations sur vos droits. Si vous estimez, après avoir contacté l'Agence / le Réseau, que vos droits « Informatique et Libertés » ne sont pas respectés, vous pouvez adresser une réclamation à la CNIL. Nous vous informons de l’existence de la liste d'opposition au démarchage téléphonique « Bloctel », sur laquelle vous pouvez vous inscrire ici : https://www.bloctel.gouv.fr Dans le cadre de la protection des Données personnelles, nous vous invitons à ne pas inscrire de Données sensibles dans le champ de saisie libre.
    Ce site est protégé par reCAPTCHA, les Politiques de Confidentialité et les Conditions d'Utilisation de Google s'appliquent.

    Partager le bien
    Nos outils
    Imprimer Imprimer
    Calculatrice financière

    * Champ obligatoire

    Partager l'annonce

    * champs obligatoires

    Les informations recueillies sur ce formulaire sont enregistrées dans un fichier informatisé par La Boite Immo agissant comme Sous-traitant du traitement pour la gestion de la clientèle/prospects de l'Agence / du Réseau qui reste Responsable du Traitement de vos Données personnelles. La base légale du traitement repose sur l'intérêt légitime de l'Agence / du Réseau. Elles sont conservées jusqu'à demande de suppression et sont destinées à l'Agence / au Réseau. Conformément à la loi « informatique et libertés », vous disposez des droits d’accès, de rectification, d’effacement, d’opposition, de limitation et de portabilité de vos données. Vous pouvez retirer votre consentement à tout moment en contactant directement l’Agence / Le Réseau. Consultez le site https://cnil.fr/fr pour plus d’informations sur vos droits. Si vous estimez, après avoir contacté l'Agence / le Réseau, que vos droits « Informatique et Libertés » ne sont pas respectés, vous pouvez adresser une réclamation à la CNIL. Nous vous informons de l’existence de la liste d'opposition au démarchage téléphonique « Bloctel », sur laquelle vous pouvez vous inscrire ici : https://www.bloctel.gouv.fr Dans le cadre de la protection des Données personnelles, nous vous invitons à ne pas inscrire de Données sensibles dans le champ de saisie libre.
    Ce site est protégé par reCAPTCHA, les Politiques de Confidentialité et les Conditions d'Utilisation de Google s'appliquent.

    Détail des diagnostics énergétiques
    DPE GES

    Montant estimé des dépenses annuelles d'énergie pour un usage standard est compris entre 1 490 € et 2 060 € . Prix moyens des énergies indexés sur les années 2021, 2022 et 2023 (abonnements compris).

    Partager avec vos proches

    Facebook Facebook
    Messenger Messenger
    Twitter Twitter
    WhatsApp WhatsApp
    LinkedIn LinkedIn
    Copier le lien Copier le lien
    Contacter
    l'agence

    Remplissez ce formulaire, nous ferons de notre mieux pour vous répondre dans les meilleurs délais.

    DROULON Immobilier
    06 21 91 10 38
    E-mail droulon.immobilier@gmail.com

    44350 Guérande

    TRAD_MELTEM_voscoordonnees
    TRAD_MELTEM_voredemande
    Règlementation

    * Champ obligatoire

    Les informations recueillies sur ce formulaire sont enregistrées dans un fichier informatisé par La Boite Immo agissant comme Sous-traitant du traitement pour la gestion de la clientèle/prospects de l'Agence / du Réseau qui reste Responsable du Traitement de vos Données personnelles. La base légale du traitement repose sur l'intérêt légitime de l'Agence / du Réseau. Elles sont conservées jusqu'à demande de suppression et sont destinées à l'Agence / au Réseau. Conformément à la loi « informatique et libertés », vous disposez des droits d’accès, de rectification, d’effacement, d’opposition, de limitation et de portabilité de vos données. Vous pouvez retirer votre consentement à tout moment en contactant directement l’Agence / Le Réseau. Consultez le site https://cnil.fr/fr pour plus d’informations sur vos droits. Si vous estimez, après avoir contacté l'Agence / le Réseau, que vos droits « Informatique et Libertés » ne sont pas respectés, vous pouvez adresser une réclamation à la CNIL. Nous vous informons de l’existence de la liste d'opposition au démarchage téléphonique « Bloctel », sur laquelle vous pouvez vous inscrire ici : https://www.bloctel.gouv.fr Dans le cadre de la protection des Données personnelles, nous vous invitons à ne pas inscrire de Données sensibles dans le champ de saisie libre.
    Ce site est protégé par reCAPTCHA, les Politiques de Confidentialité et les Conditions d'Utilisation de Google s'appliquent.

    Se connecter
    Espace propriétaire
    Page d'accueil
    Adhérents

    © 2026 | Tous droits réservés | Traduction powered by Google |

    • Nos honoraires
    • Plan du site
    • Mentions légales
    • Admin
    • Nos liens
    • Politique RGPD
    • LinkedIn

    Comme beaucoup, notre site utilise les cookies

    On aimerait vous accompagner pendant votre visite. En poursuivant, vous acceptez l'utilisation des cookies par ce site, afin de vous proposer des contenus adaptés et réaliser des statistiques !

    Paramétrer

    Cookies fonctionnelsCes cookies sont indispensables à la navigation sur le site, pour vous garantir un fonctionnement optimal. Ils ne peuvent donc pas être désactivés.

    Statistiques de visitesPour améliorer votre expérience, on a besoin de savoir ce qui vous intéresse !
    Les données récoltées sont anonymisées.

    ?

    Google Analytics

    En savoir plus
    • Acheter De l'ancien
    Créez votre alerte e-mail
    Dans un rayon de
      Budget
      Mini €
      Maxi €
      Surface
      Mini m²
      Maxi m²

      Particularites

      Equipements

      Exposition

      Afficher les biens

      Faites estimer votre bien par un professionnel

      Estimer votre bien